top of page
Create Your First Project
Start adding your projects to your portfolio. Click on "Manage Projects" to get started
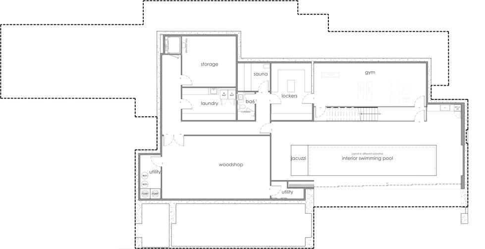
Project Type
Private Residence
Date
Jan 2022
Role
Project Manager (from SD to CA)
Location
Saratoga, California, US
Area
9800sf






















bottom of page

