top of page
Create Your First Project
Start adding your projects to your portfolio. Click on "Manage Projects" to get started
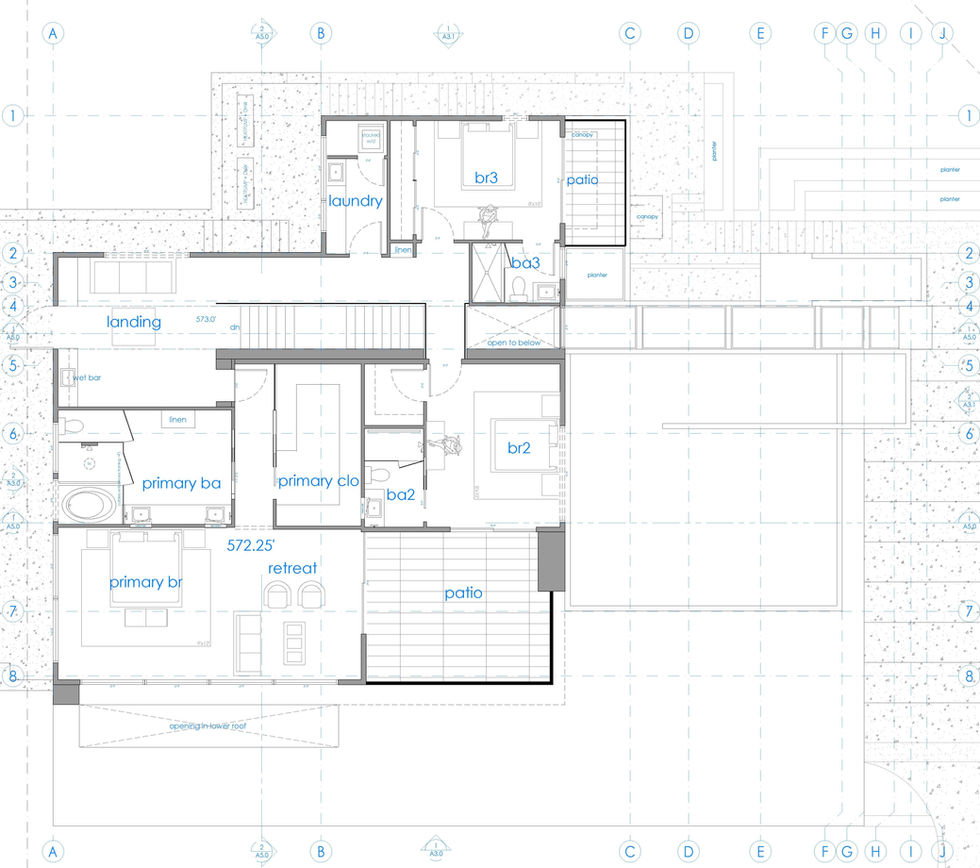
Project type
Private Residence
Location
Palo Alto, California, US
Date
Feb, 2025
Role
Project Manager (from SD to now)
Area
4990sf












bottom of page

